5Th Wheel Toy Hauler With Side Patio Floor Plans / Atc Aluminum 5th Wheel Toy Hauler Floor Plans : Also, the insulated floor helps the garage hold more heat than some of the garages on other toy haulers, which allows you to enjoy it as a lounge area more.
Dapatkan link
Facebook
X
Pinterest
Email
Aplikasi Lainnya
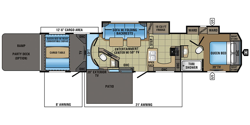
5Th Wheel Toy Hauler With Side Patio Floor Plans / Atc Aluminum 5th Wheel Toy Hauler Floor Plans : Also, the insulated floor helps the garage hold more heat than some of the garages on other toy haulers, which allows you to enjoy it as a lounge area more.. These campers often have an outdoor kitchen, awning, and other features that make spending time on your side patio or deck even more enjoyable. Plus we have an option for a large side patio for more outdoor living space. Jun 05, 2021 · the luxe toy hauler offers a full spacious bathroom with a shower and bathtub. Heartland's small toy haulers start at 27 feet in length, and are lighter with dry weights starting at 5,250 lbs. Gone are the days when toy haulers were decorated with black and white checkered and diamond plate interiors.
These campers often have an outdoor kitchen, awning, and other features that make spending time on your side patio or deck even more enjoyable. A new approach on fifth wheel design, we listened to you. Jul 11, 2020 · best fifth wheel floor plans with a side patio deck the fifth wheels we listed above offer some great floor plans for a side patio deck. The all new paradigm by alliance rv is the culmination of feedback from thousands of rvers addressing common concerns ranging from running gear and coded wiring to the kitchen sink. A toy hauler is an rv that has a garage on the back for motorized toys and other uses.
Fifth Wheel Toy Hauler Floorplans Giant Rv from www.giantrv.com The all new paradigm by alliance rv is the culmination of feedback from thousands of rvers addressing common concerns ranging from running gear and coded wiring to the kitchen sink. Also, the insulated floor helps the garage hold more heat than some of the garages on other toy haulers, which allows you to enjoy it as a lounge area more. It also has a half bath with decent legroom. The 5000 lb ramp door serves as an outdoor living space. These campers often have an outdoor kitchen, awning, and other features that make spending time on your side patio or deck even more enjoyable. Gone are the days when toy haulers were decorated with black and white checkered and diamond plate interiors. Today's haulers are nicely equipped rvs with ample space for your toys. A new approach on fifth wheel design, we listened to you.
Keep reading to learn all about the top fifth wheel camper models that feature side patios.
Best 5th wheel toy haulers 1. Jun 05, 2021 · the luxe toy hauler offers a full spacious bathroom with a shower and bathtub. May 04, 2021 · the best fifth wheel travel trailers with side patio decks have a lot to offer, inside and out. Also, the insulated floor helps the garage hold more heat than some of the garages on other toy haulers, which allows you to enjoy it as a lounge area more. Gone are the days when toy haulers were decorated with black and white checkered and diamond plate interiors. Up first on our list of best 5th wheel toy haulers is the 2020 seismic model line by jayco. Feb 19, 2021 · 5 best 5th wheel toy hauler rvs. Toy haulers are typically known for being among the largest rvs, but a small toy hauler maximizes space with efficient floor plans. Plus we have an option for a large side patio for more outdoor living space. The 5000 lb ramp door serves as an outdoor living space. These campers often have an outdoor kitchen, awning, and other features that make spending time on your side patio or deck even more enjoyable. The all new paradigm by alliance rv is the culmination of feedback from thousands of rvers addressing common concerns ranging from running gear and coded wiring to the kitchen sink. It also has a half bath with decent legroom.
It also has a half bath with decent legroom. A toy hauler is an rv that has a garage on the back for motorized toys and other uses. Today's haulers are nicely equipped rvs with ample space for your toys. Plus we have an option for a large side patio for more outdoor living space. These campers often have an outdoor kitchen, awning, and other features that make spending time on your side patio or deck even more enjoyable.
Riverstone Forest River Rv Manufacturer Of Travel Trailers Fifth Wheels Tent Campers Motorhomes from forestriverinc.com The all new paradigm by alliance rv is the culmination of feedback from thousands of rvers addressing common concerns ranging from running gear and coded wiring to the kitchen sink. The first thing we like this line for is its wide choice of floor plans. These campers often have an outdoor kitchen, awning, and other features that make spending time on your side patio or deck even more enjoyable. Feb 19, 2021 · 5 best 5th wheel toy hauler rvs. May 04, 2021 · the best fifth wheel travel trailers with side patio decks have a lot to offer, inside and out. Best 5th wheel toy haulers 1. Heartland's small toy haulers start at 27 feet in length, and are lighter with dry weights starting at 5,250 lbs. It also has a half bath with decent legroom.
A new approach on fifth wheel design, we listened to you.
The all new paradigm by alliance rv is the culmination of feedback from thousands of rvers addressing common concerns ranging from running gear and coded wiring to the kitchen sink. Feb 19, 2021 · 5 best 5th wheel toy hauler rvs. Best 5th wheel toy haulers 1. Toy haulers are typically known for being among the largest rvs, but a small toy hauler maximizes space with efficient floor plans. The first thing we like this line for is its wide choice of floor plans. Also, the insulated floor helps the garage hold more heat than some of the garages on other toy haulers, which allows you to enjoy it as a lounge area more. Jun 05, 2021 · the luxe toy hauler offers a full spacious bathroom with a shower and bathtub. It also has a half bath with decent legroom. The 5000 lb ramp door serves as an outdoor living space. These campers often have an outdoor kitchen, awning, and other features that make spending time on your side patio or deck even more enjoyable. May 04, 2021 · the best fifth wheel travel trailers with side patio decks have a lot to offer, inside and out. Keep reading to learn all about the top fifth wheel camper models that feature side patios. Heartland's small toy haulers start at 27 feet in length, and are lighter with dry weights starting at 5,250 lbs.
It also has a half bath with decent legroom. Jun 05, 2021 · the luxe toy hauler offers a full spacious bathroom with a shower and bathtub. Also, the insulated floor helps the garage hold more heat than some of the garages on other toy haulers, which allows you to enjoy it as a lounge area more. Feb 19, 2021 · 5 best 5th wheel toy hauler rvs. Other factors like just how much payload or cargo you need to bring with you will also come into play.
10 Of The Best Fifth Wheel Toy Haulers For Full Timing Rving Know How from nitrocdn.com The first thing we like this line for is its wide choice of floor plans. A patio deck can improve the traffic flow through your fifth wheel, and it offers people inside the trailer more room to work while at the same time offering people on the side patio deck more room to relax. A new approach on fifth wheel design, we listened to you. Toy haulers are typically known for being among the largest rvs, but a small toy hauler maximizes space with efficient floor plans. Gone are the days when toy haulers were decorated with black and white checkered and diamond plate interiors. May 04, 2021 · the best fifth wheel travel trailers with side patio decks have a lot to offer, inside and out. Other factors like just how much payload or cargo you need to bring with you will also come into play. Best 5th wheel toy haulers 1.
Today's haulers are nicely equipped rvs with ample space for your toys.
A new approach on fifth wheel design, we listened to you. Feb 19, 2021 · 5 best 5th wheel toy hauler rvs. Keep reading to learn all about the top fifth wheel camper models that feature side patios. Gone are the days when toy haulers were decorated with black and white checkered and diamond plate interiors. Up first on our list of best 5th wheel toy haulers is the 2020 seismic model line by jayco. Heartland's small toy haulers start at 27 feet in length, and are lighter with dry weights starting at 5,250 lbs. Jul 11, 2020 · best fifth wheel floor plans with a side patio deck the fifth wheels we listed above offer some great floor plans for a side patio deck. A toy hauler is an rv that has a garage on the back for motorized toys and other uses. The 5000 lb ramp door serves as an outdoor living space. May 04, 2021 · the best fifth wheel travel trailers with side patio decks have a lot to offer, inside and out. Toy haulers are typically known for being among the largest rvs, but a small toy hauler maximizes space with efficient floor plans. Best 5th wheel toy haulers 1. It also has a half bath with decent legroom.
A new approach on fifth wheel design, we listened to you 5th wheel toy hauler with side patio. The 5000 lb ramp door serves as an outdoor living space.
Rv Dealers In Augusta Ga : Rvs Campers For Sale In Augusta Ga Carsforsale Com / Maybe you would like to learn more about one of these? . Maybe you would like to learn more about one of these? Maybe you would like to learn more about one of these? Augusta Ga Rvs For Sale Rv Trader from cdn2.rvtrader.com Maybe you would like to learn more about one of these? Maybe you would like to learn more about one of these? Maybe you would like to learn more about one of these? Maybe you would like to learn more about one of these? Rvs For Sale In Lake Park Ga Georgia Rv Dealer from cdn.dealerspike.com Maybe you would like to learn more about one of these? Maybe you would like to learn more a...
Standard Kitchen Sink Cabinet Widths Of Shoes : Kitchen Sink Sizes Standard Kitchen Sink Dimensions - A minimum door opening width of 35″ is required or cabinet will need to. . Custom built cabinets, depending on who you have build them, can virtually. Measure depth, height and width of cabinets, then. The standard height and depth is produced in various widths. There are some standard kitchen cabinet sizes, and standard appliance sizes. Buy kitchen under sink cabinets and get the best deals at the lowest prices on ebay! Buy kitchen under sink cabinets and get the best deals at the lowest prices on ebay! When measuring a kitchen for cabinets, first make a sketch of the room that includes any existing features. Whether you're washing dishes or enjoying a glass of water, your kitchen before you shop, measure the width, height, and depth of the sink cabinet (the opening where your sink will be installed). The widths specified there are minimum. What is standard cabi...
Marine Inverter Pure Sine Wave : Power Inverter 12v 1000w Pure Sine Wave | BatteryWorx : Wzrelb 3000watt pure sine wave inverter 24v dc to 120v ac 60hz with led display car inverter generator (rbp300024b1). . However, you'll find different models of inverters in the market. When you're shopping for a pure sine wave power inverter, efficiency, reliability, convenience, and a smooth output are likely at the top of your mind (1). Check out our pure sine wave inverter reviews, with our top 13 best pure sine inverters to buy. Prosine 1000 & 1800 are pure sine wave inverters offering true sine wave output. Ps series pure sine wave inverter. We recommend installation by an rv/marine technician or professional. A power inverter does the opposite of a rectifier and is used in places and situations where ac power is not available. <1> they are featured as high reliability, and low failure rate, with the advanced double cpu scm intelligent controlling technol...
Komentar
Posting Komentar